
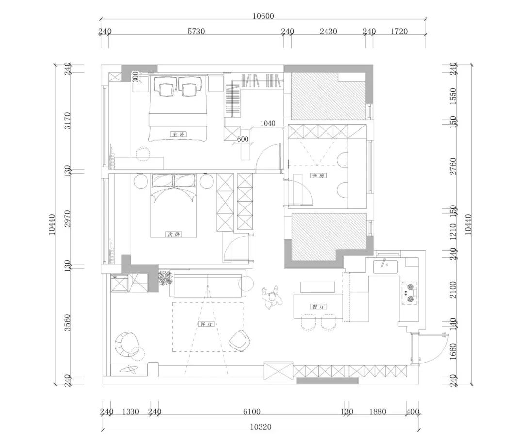
105㎡精裝改造 | 暖柔中古風,封存時光之跡

本案年輕業主比較喜愛復古風、文藝向的設計,基于此,設計師選用了現代中古這種小眾又有設計感的風格為他們裝飾新家,從容地建立起與生活的對話。
全屋以業主喜愛的咖色和胡桃木材質為主軸,帶入復古韻味的軟裝配飾,簡潔造型融洽藝術內核,空間就此萃釀出浪漫而迷人的質感。

玄關

入戶由甜甜的奶油白填充,玄關柜底部留空放置鞋履,中部加入胡桃木材質柜格,為輕盈的柜體添上了視線的聚焦點,亦為屋內的調質埋下伏筆。
右側將鏡面嵌入柜體,方便出門的著裝整理,同時打開餐廚的視野。
客廳


家可以看作內心世界的一種投射,簡約的基底中,寥寥幾件家具便足以編織悠然大方的氣質,表達居者簡單隨性而又自在輕松的生活方式。



沙發用半墻色拉伸簡單的層次,陽臺置入洗衣機和烘干機,協調功能性與美學力。
空間利用留白和木質、皮藝、綠植的搭配,拋卻繁復的裝飾負擔,漫開久居不厭的愉快家景。
餐廳
餐廳鋪開木色的沉淀感,融入一日三餐的溫馨之景,顏值之外,相鄰餐桌安裝軌道插座,更兼實用。


透明感落地方桌,搭配形態、材質多樣的餐椅,溫馨中衍生趣味。兩盞飛碟吊燈打下暖融光暈,推展出日式居酒屋般的情調氛圍。
設計沿餐廚間的半墻打造L字木框結構,形成一處方便擺放杯品和小物件的輔助收納區。晨起煮開咖啡,開啟一日好心情~
廚房

開放式廚房打造U型動線,冰箱外移過道,廚電嵌入柜體,節省了大量臺面操作空間,釋放出轉身騰挪的活動余裕。
臺面做了一個高低差,以小半島的形式與餐區形成緊密連接,半墻區分邊界又不會妨礙日常的溝通交流,更增儀式感。
臥室

時光的筆觸延伸至臥室,古樸的木與柔潤的白,演繹慵懶松弛的悠閑氛圍,調和出愜意與安然。


半墻的木結構延續公區域的寧靜安閑氣氛,沉斂中夾帶著秩序的美感。黑色邊幾、畫框搭配精致金屬壁燈,營造復古悠揚的韻味。

衣帽間區域則用靈活、模塊式的柜體設計脫離常規思維束縛,推展出觀察空間內外的新視角,帶來新鮮感和趣味感。



次臥以暖色為基底,在軟裝上給予亮點,黑色質感元素、幾何線條的使用,沖淡暖色的甜柔而增添更多理性的冷感,呈現中古風獨有的氣質。
—
·項目信息·
項目名稱:臻翠府
設計風格:現代中古
項目類型:三室兩廳
項目地點:中國·杭州
項目面積:105㎡
套餐類型:精裝房改造
免費
免費申請戶型規劃
專屬設計師免費1對1全程服務
已經有3766人申請
24小時免費咨詢電話
400-8800-618
你家預算
108080元