
221方戶型大爆改,極致功能設計與優雅東方美學的完美組合


鯨落于海,星沉于洼,風隱于密林,蟬鳴漏進夏至。
人間最美,不過自然的密跡。
世間所有,因家而變得溫柔。
本案是一家四口居住的四室大平層戶型。居室色彩素凈而優雅,并加入了許多現代元素,結合戶型的大改造與自由的光影渲染,使功能的實用性和對傳統文化的追求得到雙向滿足。設計通過有序規整的表達,清晰的邏輯排布,將東方美學特有的內斂雅致隱匿在屋中各個細節之間。
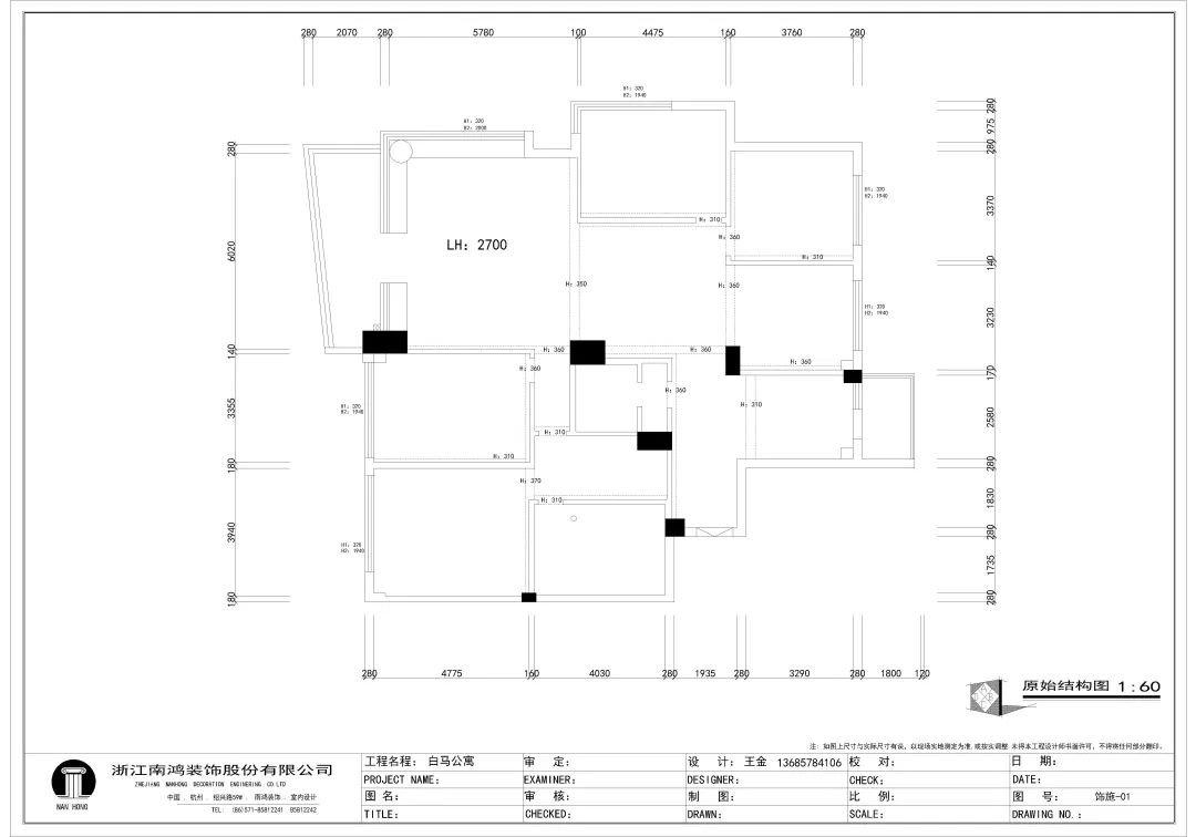
#戶型改造

這套房子最大的優點在于客餐廳空間很大且客廳采光非常好;
缺點包括:入戶對著西面房間的房門,這個房間又影響了餐廳的采光;玄關沒有置放鞋柜的地方;客衛離南次臥太遠,使用起來極不方便;主臥進門正對衛生間,衣帽間與衛生間的布局也不合理等。

我們的改動思路:
首先是把兩個衛生間的墻全部拆除并重新布局,客衛的位置整體往下移做出一條過道,把南次臥跟保姆房之間的動線相連,這樣就能使客廳與南次臥去客衛的路減少,動線更加合理;
然后將西面臥室的墻拆除,在進戶門直對的地方新砌一堵薄墻來構筑玄關的效果,再用玻璃代替原來的磚墻,解決餐廳采光不足的問題;
其次把原主臥衣帽間與入戶過道之間的墻整體往里退,朝進戶門過道的方向做一排鞋柜,滿足玄關鞋柜的需求;
最后是把原主衛的區域切掉一半改成衣帽間,把原衣帽間的位置做成主衛,這樣就能同時解決主臥進門對著衛生間和幾個空間布局不合理的問題。
項目信息:
地址 | 白馬公寓
城市 | 中國 杭州
戶型 | 四室兩廳
面積 | 221㎡
風格 | 新中式
設計施工 | 浙江南鴻裝飾
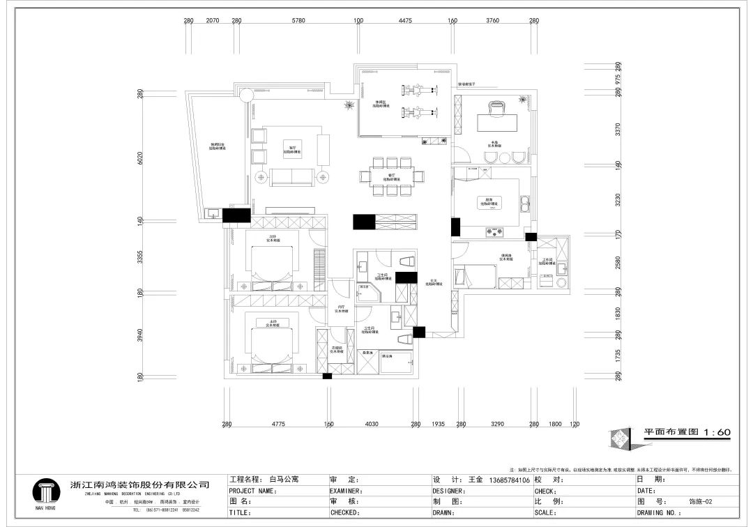
Hallway

在經過空間的解構重組之后,不同功能區的劃分變得更加合理與明確。相鄰墻體的移動為玄關增加了鞋柜的空間,過道盡頭布置了中式意味的端景,整體色彩定調統一,呈現寧靜和煦的感受。
Living Room

客廳的優越采光通過兩側的落地窗得到完美展現,溫柔的灰調與質感實木結合,置身其中,感受著自在的呼吸,以及自然與心靈的無聲共鳴。



素樸雅致的軟裝家具包藏著現代的簡潔精神與中式的典雅風味,啞光磚搭配布藝與肌理感墻布,賦予空間簡約而高級的格調。

開放式布局釋放出自由的暢快氣息,讓人不受拘束地居住其中。白凈的頂面保留一盞古色古香的主燈,收納型的電視背景墻嵌入鏡面,巧妙放大空間,形成通透視感。
Dining Room



設計改造之后,餐廳空間得到擴大并改善了采光。木質餐桌椅配套,吊燈則選用更具現代感的輕盈外觀。餐邊柜造型與客廳背景墻相似,中部嵌入的電視滿足主人一家日常邊就餐邊娛樂的功能需求。

原本厚重的磚墻“改頭換面”成實用靈活的雙向柜體,所構成的洄游動線讓空間格外的通達和便捷。
Kitchen

廚房空間大體使用利落的黑白配色,烤漆廚柜門組合巖板臺面,防水石膏板吊頂搭配排布工整的筒燈照明,另中置島臺,全面提升了空間的舒適體驗。
Bedroom


幽靜的藍色墻面帶著點斑駁的金,墻布的肌理十分細膩,不大不小正合適的休息空間,自然散發出安穩的靜謐感受。

次臥擁有更溫暖的顏色,經典時尚的硬包背景,穩重厚實的木質元素,空間的包容感極佳。
Bathroom


主衛除開臺盆區與淋浴區之外,還特意加入了紅外線桑拿區來專門滿足主人日常蒸桑拿的喜好。設計的人性化正是從各種功能的完善上得以體現。
免費
免費申請戶型規劃
專屬設計師免費1對1全程服務
已經有3768人申請
            24小時免費咨詢電話
400-8800-618
		你家預算
108080元